Disclaimer: Some Images have been virtually staged to showcase the potential of the home.

Lindale Greens #LR14 *

City: Sacramento

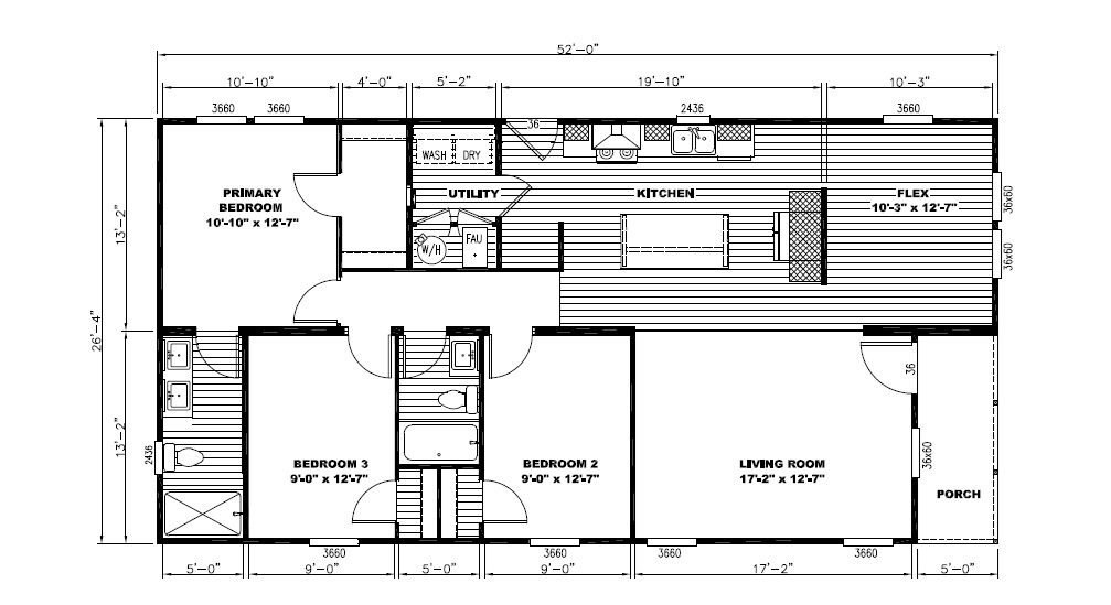
26 Cavco 24x56

1,344 sq ft - 3 Beds/ 2 Baths

Home On Order

$199,900

Agent Information


Kristin M. Grossi - General Manager
Clayton Homes #1076
11230 Gold Express Dr. Suite# 305
Gold River, CA, 95670
Office: 916-426-8808 Cell:916-633-8908
Kristin.Grossi@ClaytonHomes.com